Wespelaar, Nieuwstraat 17
250 000 euro
Beschrijving
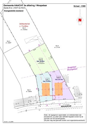
Perceel bouwgrond voor open bebouwing met een oppervlakte van ± 6a 18ca. Perceelbreedte: 25,89m. Bouwbreedte: ± 9m. Lot 2 uit een goedgekeurde verkaveling (OMV_2024066651). Oriëntatie: noord. Gvg, Wg, Gmo, Vkr, Vv. P-score: D / G-score: C. Achterliggende percelen van ± 26a 75ca kunnen eventueel bijgekocht worden. VP: € 20.000. (Gvg, Bg, Gmo, Vkr, Gvv - P-score: D / G-score: B).STEDENBOUWKUNDIGE VOORSCHRIFTEN :
Zie downloads.
DIVERSEN :
Gas in de straat.
De kosten van de opmeting bedragen € 750 + 21% BTW en zijn ten laste van de koper (bij aankoop achtergrond bijkomend € 800 + 21% BTW) , welke ook zijn aandeel in de kosten van de verkavelingsakte zal dragen.
STEDENBOUWKUNDIG :
Stedenbouwkundige vergunning : nee
Stedenbouwkundige bestemming : woongebied
Geen rechterlijke herstelmaatregel of bestuurlijke maatregel opgelegd.
Voorkooprecht : ja
Verkavelingsvergunning : ja (OMV_2024066651)
P-score: D / G-score: C
Algemene gegevens
| Adres: | Nieuwstraat 17 Wespelaar |
| Referentie: | 6089 |
| Vraagprijs: | € 250.000 |
| Type: | Grond |
| Beschikbaar vanaf: | Bij akte |
| Perceeloppervlakte: | 6,18 are |
| Perceelbreedte: | 26 m |
| Type constructie: | Traditioneel |
Indeling
| Tuin: | Ja |
| Tuin oriëntatie: | Noord |
| Tuin kwaliteit: | Aan te leggen |
Comfort
| Treinhalte: | Ja - op minder dan 500 m |
| Bushalte: | Ja - op minder dan 500 m |
| Winkel: | Ja - op minder dan 500 m |
| School: | Ja - op 500 m tot 1000 m |
| Kinderopvang: | Ja - op 500 m tot 1000 m |
| Ontspanning: | Ja - op 500 m tot 1000 m |
In de buurt
winkels
scholen
restaurants
Bakkerij
Meer info?
Contacteer ons
Contacteer ons
Downloads
- ontwerpplan.jpg
- Stedenbouwkundige voorschriften.pdf
- Vastgoedinformatie 210Y.pdf
- Vastgoedinformatie 210A2.pdf
- Vastgoedinformatie 210Z.pdf
- Bodemattest 291N2.pdf
- Bodemattest 291C4.pdf
- Bodemattest 291A4.pdf
- kadastraal plan.pdf
- Gewestplan.jpg
- Overstromingsrapport 210Y.pdf
- Overstromingsrapport 210Z.pdf
- Overstromingsrapport 210A2.pdf
Wettelijke info
Stedenbouwkundige vergunning: Neen
Voorkooprecht: Ja
Verkavelingsvergunning van toepassing: Ja
Stedenbouwkundige bestemming: Woongebied
Overstromingsgevoelig:
Geen overstromingsgevoelig gebied
Geen afgebakende zones: Geen afgebakende zones
Overstromingsgebied: Geen afgebakende zones
Voorkooprecht: Ja
Verkavelingsvergunning van toepassing: Ja
Stedenbouwkundige bestemming: Woongebied
Overstromingsgevoelig:
Geen overstromingsgevoelig gebied Geen afgebakende zones: Geen afgebakende zones