Verhuurd

Beschrijving

! IN OPTIE - HUURCONTRACT IN OPMAAK !
Dit ruime en lichtrijke nieuwbouwappartement (152 m²) in Haacht met panoramisch uitzicht over de velden is een oase van rust en luxe!
Het appartement - het enige in het complex - is gelegen op de eerste verdieping, boven een huisartsenpraktijk en beschikt o.a. over een uiterst ruime woonkamer met open keuken, 2 slaapkamers, badkamer met bad en douche, 2 WC's, 2 bergingen, garage en tuin (oriëntatie: noordoost). Geen lift.
Voorzien van de nieuwste technieken zoals vloerverwarming, warmtepomp en zonnepanelen is dit appartement perfect voor wie stijl, comfort en duurzaamheid wil combineren in een rustige omgeving.
EPC in opmaak, nieuwbouw label A.
Huurprijs: € 1.200 p.m. Prov. gem. kosten: € 50 p.m. Huurcontract: 3-6-9. Onmiddellijk beschikbaar. Plaatsbeschrijving op gemeenschappelijke kosten (50/50).

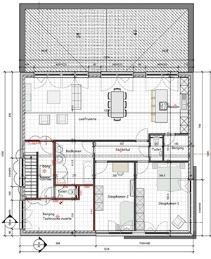
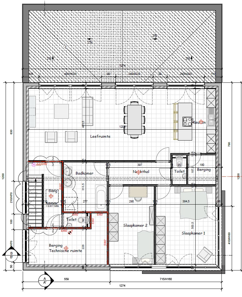
INDELING:

Gelijkvloers: Inkomhal met trap naar verdieping, garage (elektrische sectionale poort).

Verdieping 1: De overloop biedt toegang tot berging 1 (met alle technieken: ventilatiesysteem D, warmtepomp, uitgietbak), toilet 1 en tot de leefruimte met open keuken dewelke voorzien is van alle toestellen (combi-oven, vaatwasser, inductiekookplaat met geïntegreerde dampkap, koelkast, spoelbak) met aansluitend berging 2 (aansluiting wasmachine / droogkast).
Verder beschikt het appartement over een nachthal, 2 slaapkamers (XXm², XXm²), toilet 2, badkamer met ligbad, douche en dubbele lavabo in meubel met spiegelkasten.

Buiten: achtertuin met terras, privatief gebruik voor appartement.

DIVERSEN:
Verlichtingsarmaturen reeds deels aanwezig.
Individuele tellers voor water en elektriciteit. Zonnepanelen aanwezig.
Gemeenschappelijke kosten € 50 p.m. HWB: 3 maand. Onmiddellijk beschikbaar.
Plaatsbeschrijving via een expert, kosten hiervan voor de helft van de huurder. (€ 187,55 incl. 21% BTW)